Robinson Architectural Services, Edinburgh

Our services include; measured surveys, Planning Applications, Listed Building Consent and Building Warrants. We will obtain the necessary permissions required to commence your project.

Architectural technical drawings and plans for renovations and extensions

Our no fuss, can-do, down to earth approach

With a decade of experience helping people in Edinburgh and Lothian shape their homes to better suit their needs, qualified architectural technician Stuart Robinson contributes to renovation, conversion and extension projects.

How we work

Our process steps

Contact us

If you are embarking on house alterations, attic conversions, garage conversions, commercial property conversions, extensions or internal alterations, you will require technical drawings to submit to the local council for approval. Call us to discuss the process on 07538838404 or email robinsonarchitectural@gmail.com

Initial Meeting

During the initial site meeting we will discuss the proposed project you are looking to carry out and provide you with advice and guidance. A free no obligation fee quotation will be provided based on these discussions

Measured Survey

Once the quote has been accepted we will arrange to carry out a full measured survey of your property. This will supply us with the required information to produce the scheme designs.

feature-plan.svg
Scheme Designs

We will provide you with design scheme drawings based on the brief from the initial meeting.

Lodge Applications

Once the design has been agreed, the required applications (planning permission, listed building consent, Building Warrant) will be submitted to the local Council for approval.

Obtain Permissions

We will liaise with the local Council until the applied for permissions have been granted, which will allow the proposed works to commence.

Plans

Here are some of the outputs of our work

  • PLAN-1-300.gif

    Garage becomes bedroom with ensuite

    VIEW

  • PLAN-2-300.gif

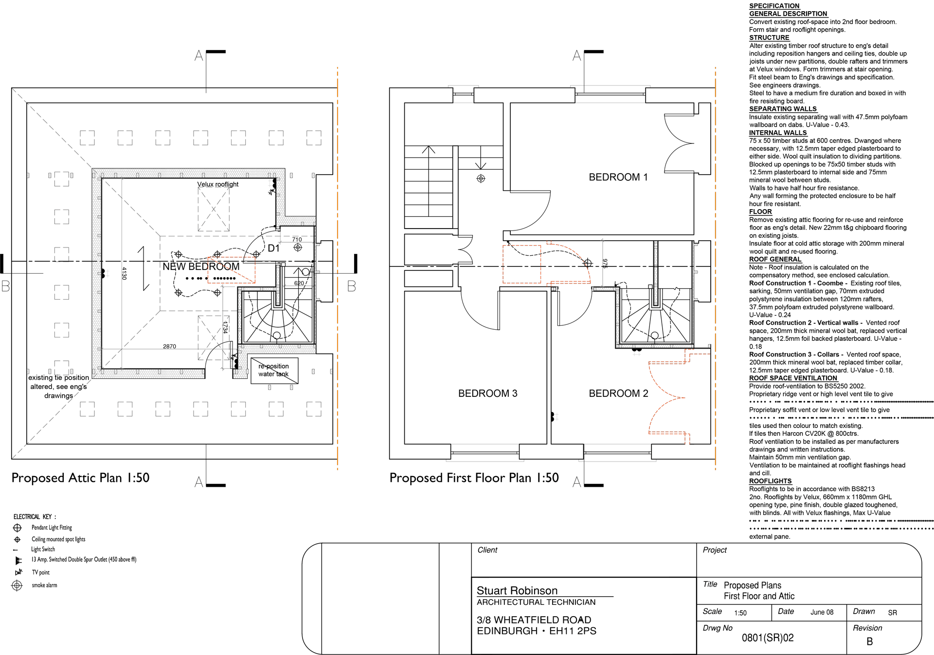
    New room in attic

    VIEW

  • PLAN-3-300-e1513705283452.gif

    Single story extension adding new bedroom and bathroom

    VIEW

  • PLAN-4-300.gif

    Making the kitchen and bathroom work better

    VIEW

Get in touch

Happy to answer your questions

15 Greenbank Drive
Edinburgh
EH10 5RE

robinsonarchitectural@gmail.com

07538 838 404